Une mini maison urbaine tout en verre et acier blanc

Une mini maison urbaine tout en verre et acier blanc

24 novembre 2019 Off By

Retour au Japon où une mini maison urbaine tout en verre et acier blanc peut en dérouter plus d’un. On est très loin du concept d’un habitat tout dans la retenue, tout dans l’intimité. Ici, on est dans l’idée qui paraît impraticable à vivre, fondre les limites de l’habitat avec celle de l’environnement de la ville extérieure. Un concept qui me semble intéressant même si cela peut paraître difficile à mettre en œuvre dans notre civilisation occidentale.

Une mini maison urbaine tout en verre et acier blanc

Construit à Tokyo par le cabinet d’architectes Sou Fujimoto, une mini maison urbaine tout en verre et acier blanc est un projet unique en son genre et un des plus difficile à faire accepter à de futurs constructeurs. Très peu d’intimité dans cette sculpture verticale moderne si peu conventionnelle au sein d’une cité urbaine surpeuplée.

On reste pourtant dans le concept de la mini maison japonaise, de par le terrain minuscule enserré dans le paysage urbain, et le bâtiment tout en hauteur qui utilise les volumes au maximum.

Pour le reste, avec sa façade tout en verre, fixée sur une structure en acier blanc, des formes géométriques à peine délimitées par les lignes de la charpente métallique, des pièces et des terrasses qui ne se cachent pas derrière d’énormes pots où croissent des plantes, cette mini maison nous expose clairement sa « green attitude », son style très personnel.

Cependant, en dépit de sa volonté de clarté et d’ouverture vers l’extérieur, les pièces « privées », telles que chambres ou salle de bain, sont enveloppées de telle manière que, d’où qu’on soit dans la rue, on ne puisse rien en apercevoir.

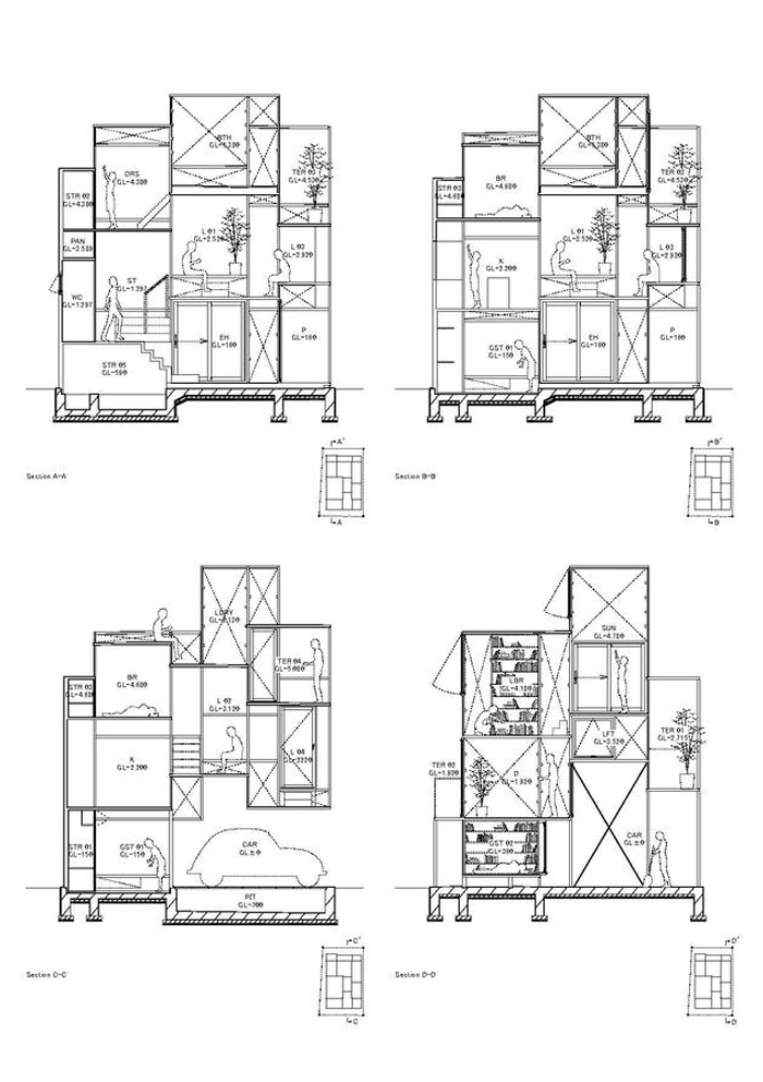
L’agencement des niveaux est très déroutant et aussi anormal que peut l’être l’architecture du bâti. Ici, pas de deux et troisième niveau, mais une succession de « plateformes» qui se juxtaposent, décalées de l’équivalent de deux ou trois marches. Les architectes ont ainsi créé pas moins de douze niveaux à cette mini maison qui en temps ordinaire en aurait abrité trois.

Très peu aussi de réelles portes pour séparer les espaces de vie. Il en résulte un sentiment de pièces déconnectées, un puzzle complexe en trois dimensions qui justement déroute et empêche de l’extérieur d’appréhender la profondeur de l’habitat.

Un peu plus de détails

Une mini maison urbaine tout en verre et acier blanc est comme chaque maison conventionnelle, un compromis entre pièces de vie communes, comme la cuisine, salle de séjour, placées sur le devant ou au centre, et pièces de vie privée, comme les chambres, la salle d’étude ou la salle de bain, placées en arrière ou au sommet et cachées de la vue extérieure.

Bien que le schéma puisse paraître complexe, chaque pièce de vie à sa fonction propre qui définit si elle doit être exposée où cachée. Chaque plateforme est dimensionnée à son usage et suffisamment large pour y vivre correctement.

Pour mieux comprendre, je vous invite à regarder les plans et les coupes que les architectes ont dessiné.

Inexorablement, dans cette mini maison, on se retrouve seul face à la ville, seul face à sa propre réflexion dans les vitres, sans savoir où se situe la limite entre la fin de la maison et le début du quartier. Peut être pas transposable dans toutes les régions et sous tous les climats, elle a toutefois le mérite d’exister et de nous interroger sur nos choix architecturaux.

Crédit photos : Sou Fujimoto Architects